




Beteckning: Spinnaren 2
Adress: Göteborgsvägen 52
Byggnadsår: 1890
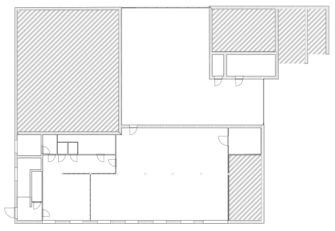
Yta:
950 m² kontor/utställning i egen byggnad om tre våningar.
192 m² + 255 m² lageryta i intilliggande byggnad.
22-30 parkeringsplatser finns lediga på fastigheten, ytterligare platser kan frigöras.
Beskrivning:
Byggnaden är uppförd ca år 1890 och har varsamt renoverats till dagens stilfulla kontorsbyggnad med både ventilation och komfortkyla. Allmänna kommunikationer i anslutning till byggnaden. Mycket goda skyltmöjligheter längst med Göteborgsvägen. Byggnadsgränsen går vid trottoarkant.
Kontakta GA-Förvaltning på telefon 031-874750.
Ledig från och med 2021-03-01